• Projects
  • Services
  • Latest
  • Blog
  • About
  • Contact

Tim Kraft, AIA LEED-AP BD+C

  • Projects
  • Services
  • Latest
  • Blog
  • About
  • Contact

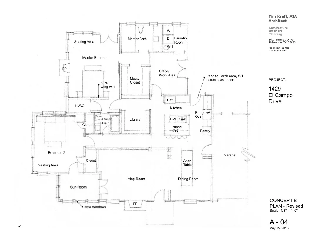
1429 El Campo Drive

The client purchased this one story, 2,100 sf home on a 1/2 acre lot in the Forest Hills neighborhood east of White Rock Lake.  The pier and beam home originally built in the 1940’s was expanded in the 90’s with a modern style addition on the back side of the home.  The client wanted to return the home to it’s original character with the thought of an “English country cottage” in mind. 

 

The remodel/renovation project currently under construction includes the removal of interior walls to open the kitchen to the dining and living areas, reconfigure interior walls, and add outdoor porches along the southwest and northwest corner of the home.   New siding, doors, windows, spray foam insulation, and roofing are part of the project.

IMG_8075.JPG
IMG_8544.JPG
IMG_8359.JPG
IMG_1059.JPG.jpg
IMG_8164.JPG
IMG_8541.JPG
IMG_8818.JPG
IMG_8392.JPG
IMG_8536.JPG
IMG_8123.JPG
IMG_8378.JPG
IMG_8830.JPG
IMG_8815.JPG
IMG_8813.JPG
Trew Concept Package floor plan_4.jpg

Powered by Squarespace.